科技前沿

当前位置: 首页 > 学院动态 > 科技前沿

无接触法兰直波导和网分扩频模块导轨——让毫米波S参数测试更高效更精准

- 编辑:小编 - 2021 / 12 / 24

无接触法兰直波导和网分扩频模块导轨——让毫米波S参数测试更高效更精准(图1)

一、无接触法兰直波导


经常做毫米波波导产品测试的工程师经常受到这些问题的困扰:

  • 使用波导螺钉固定测试设备和DUT连接会在DUT表面留下划痕和痕迹。甚至磨掉DUT的镀金表面。

  • 使用波导螺钉做测试集和DUT连接会降低波导性能,缩短设备寿命。

  • 通过使用波导螺钉,测试装置和被测设备之间不正确的连接,可能导致测试结果不一致或错误的数据。

  • 测试设备和DUT之间空间比较小,螺钉固定很麻烦

  • 使用波导螺钉来连接测试装置和DUT连接是很耗时的。

无接触法兰直波导和网分扩频模块导轨——让毫米波S参数测试更高效更精准(图2)

法兰细节照片


Eravant(SAGE Millimeter, Inc)全球知名的毫米波器件和测试供应商,他们在毫米波产品测试过程也遇到了上面这些困难,驱使他们研发了最新的Proxi-Flange非接触法兰:是一种具有新颖法兰设计的直波导,该法兰由一组小针状结构组成,与其他波导法兰连接时形成RF扼流,消除了完美机械接触的要求。不需要完美的机械接触。Proxi-Flange™避免了由于两个波导法兰配合时不完美接触造成的返回损耗和高插入损耗的问题。Proxi-Flange™消除了任何波导螺钉的需要,从而提高了耐用性、测量一致性和可重复性。


1.1

Proxi-Flange机械设计:


  • 采用Anti-Cocking法兰。

  • 可加工性是主要考虑因素。来回的电气和机械迭代执行,以实现最高的电气性能,同时允许低成本的加工过程。

  • 选用铍铜材料以保证耐久性。

  • 为提供适当的机械支撑,保留了定位销。

  • Proxi-FlangeTM采用镀金的,具有最高的电气性能

无接触法兰直波导和网分扩频模块导轨——让毫米波S参数测试更高效更精准(图3)


无接触法兰直波导和网分扩频模块导轨——让毫米波S参数测试更高效更精准(图4)


采用这种最新技术Eravant开发出一系列Proxi-Flange™ 无接触法兰直波导,频率覆盖18-325GHz。


1.2

标准型号


无接触法兰直波导和网分扩频模块导轨——让毫米波S参数测试更高效更精准(图5)



采用Proxi-Flange™ 无接触法兰直波导带来的福利:

● Proxi-Flange™将提供更优质的DUT产品

● Proxi-Flange™将保持测试设备的准确性,延长设备的使用寿命。

● Proxi-Flange™将避免波导连接错误,提供更可靠的DUT测试数据。

● Proxi-Flange™可以进行密闭空间测试。

●Proxi-Flange™将使非标准法兰DUT测试成为可能。

● Proxi-Flange™和Wave-Glide™将释放精密机械对准应力,提高生产效率,并保证DUT测试结果一致。 


1.3

标准和无接触法兰对比测试数据:


无接触法兰直波导和网分扩频模块导轨——让毫米波S参数测试更高效更精准(图6)

测试条件:使用带螺钉普通法兰和不带螺钉的非接触法兰测试固定衰减器 。

结果表明:机械接触/固定和非机械接触/固定无差异。


无接触法兰直波导和网分扩频模块导轨——让毫米波S参数测试更高效更精准(图7)


测试条件:分别测试非接触式法兰波导加螺钉和不加螺钉的S参数。

实验结果:可以发现带螺钉的非接触式法兰其抑制带性能较差,可能是由于法兰上的螺杆扭矩不均匀导致了法兰的翘起。


二、扩频模块滑轨


无接触法兰直波导和网分扩频模块导轨——让毫米波S参数测试更高效更精准(图8)


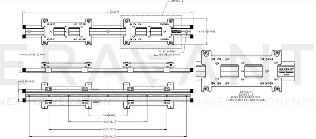
STQ-TL-RW-S10-M1是一款新型的VNA扩频模块手动线性导轨,是Eravant最新专利Wave-GlideTm产品家族第一个成员,它是一种新型毫米波精确测试装置,配合Proxi-Flange™无接触法兰直波导的使用,对于需要DUT和测试设备之间频繁连接和断开连接的情况下,可以实现更快的毫米波和太赫兹测量,同时保持准确性和可靠性。

STQ-TL-RW-S10-M1是有一套直线导轨和安装板组成。可以兼容市面上主流的VNA扩频模块。也可以通过定制安装板适应更多的VNA扩频模块。


2.1

可以通过下面视频了解Wave-Glide™的魅力:



2.2

轨道基本信息:


无接触法兰直波导和网分扩频模块导轨——让毫米波S参数测试更高效更精准(图9)


2.3

导轨尺寸图:


无接触法兰直波导和网分扩频模块导轨——让毫米波S参数测试更高效更精准(图10)


2.4

兼容VNA型号清单:

无接触法兰直波导和网分扩频模块导轨——让毫米波S参数测试更高效更精准(图11)


2.5

Wave-Glide™更多家庭成员敬请期待!


无接触法兰直波导和网分扩频模块导轨——让毫米波S参数测试更高效更精准(图12)


   Eravant(Sage Millimeter)是全球知名的毫米波元器件和测试设备生产商。最高频率解决方案可覆盖500GHz,提供丰富产品可选性。


   苏州瑞贝斯是Eravant 中国区总代理,负责Eravant在中国区的推广和销售,拥有专业技术支持团队。欢迎随时咨询。sales@rebes.net  0512-62657975 


2.6

更多信息, 请联系我们:


苏州瑞贝斯电子科技有限公司

电话:0512-62657975

邮箱: sales@rebes.net

网址: www.rebes.net

瑞贝斯微信公众号

无接触法兰直波导和网分扩频模块导轨——让毫米波S参数测试更高效更精准(图13)


添加销售微信

无接触法兰直波导和网分扩频模块导轨——让毫米波S参数测试更高效更精准(图14)



投稿/招聘/推广/宣传 请加微信:15989459034

无接触法兰直波导和网分扩频模块导轨——让毫米波S参数测试更高效更精准(图15)


招生咨询电话:028-36792608、36792609、36792611、36792612
招生咨询QQ:800067858

地址:天府校区:天府新区视高经济开发区花海大道大学路1号 环天府校区:环天府新区天府大道陵州大学城1号
Copyright © 2006-2026 SCSTC.CN All Rights Reserved.蜀ICP备18005196号-1